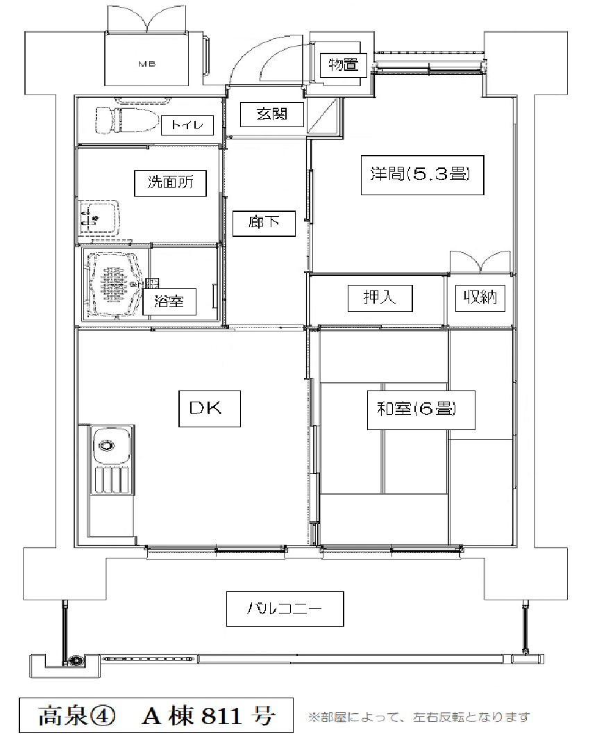
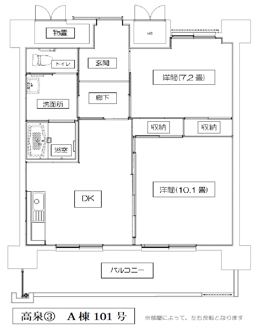
令和7年度 第3回 大牟田市営住宅 随時募集 募集住宅(間取り図)を掲載しています。
募集住宅を選択されると、間取り図を確認できます。
【単身入居可能な一般住宅】
(2人以上の世帯でもお申込みできます。)
【単身入居可能な優先階住宅】
(1階の住宅で、通路から住宅までの階段が比較的少ない住宅です。2人以上の世帯でも
お申込みできます。)
【一般住宅】
(単身でのお申し込みはできません)
【多家族向け住宅】
(入居時に、3人以上の世帯が対象の住宅です。)
【優先階住宅】
(1階の住宅で、通路から住宅までの階段が比較的少ない住宅です。単身でのお申し込みは
できません。)
【多家族向け優先階住宅】
(入居時に、3人以上の世帯が対象です。1階の住宅で、通路から住宅までの階段が比較的少ない住宅です。)
【車いす対応住宅】
(室内は段差がなく、車いすでの移動かできる住宅です。)
【多家族向け車いす対応住宅】
(入居時に、3人以上の世帯が対象です。1階の住宅で、室内は段差がなく、車いすでの移動かできる住宅です。)
【新婚・子育て世帯向け住宅】
(新婚・子育て世代を支援するための住宅です。)
【特別募集住宅】
(過去に住宅内での死亡等が発生したため、募集を停止していた住宅です。単身でのお申し込みはできません。)
〇 浴槽・風呂釜・給湯器を、大牟田市が設置している住宅
【一般住宅】
(単身でのお申込みはできません。)
【多家族向け優先階住宅】
(入居時に、3人以上の世帯が対象です。1階の住宅で、通路から住宅までの階段が比較的少ない住宅です。)
【優先階住宅】
(1階の住宅で、通路から住宅までの階段が比較的少ない住宅です。単身でのお申し込みは
できません。)