住宅名

01白銀住宅

01白銀

所在地

大字白銀777番地2 /  大字白銀777番地39

建設年度

昭和63 平成2

階数

3階

棟数

14棟

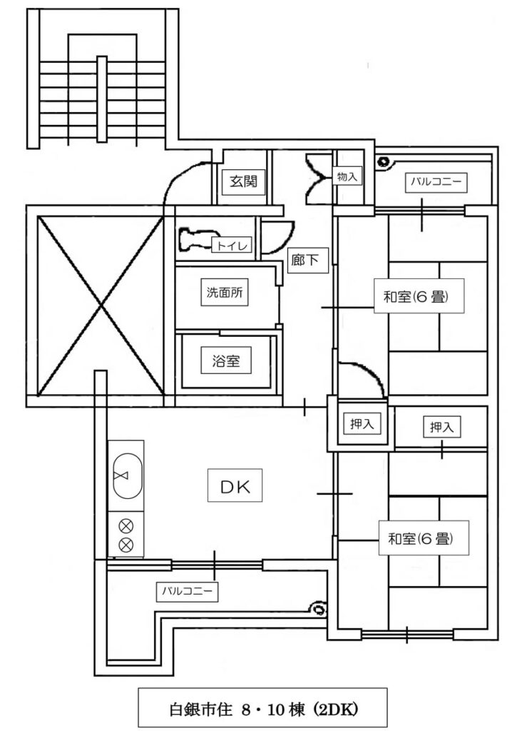
住戸間取り

2DK・3DK・4DK

総戸数

168

駐車場台数

110

車いす住宅

単身入居

特別単身

市外入居

エレベーター

浴槽種類

据置式

給湯種類

バランス釜

浴槽等設置

設置済

ガス種類

集合LPG(大牟田簡易ガス)

小学校区

吉野

バス停 時間

吉野150m2分

路線名

57

最寄りのスーパー等

マルショク吉野店650m9分

最寄りの医療機関

たちばなクリニック350m5分

担当地域包括支援センター

吉野地区

備考

H21~24年度全面改修

全体配置図

01白銀

外観写真

間取り図